
Корп. бронь
8 322 564 ₽
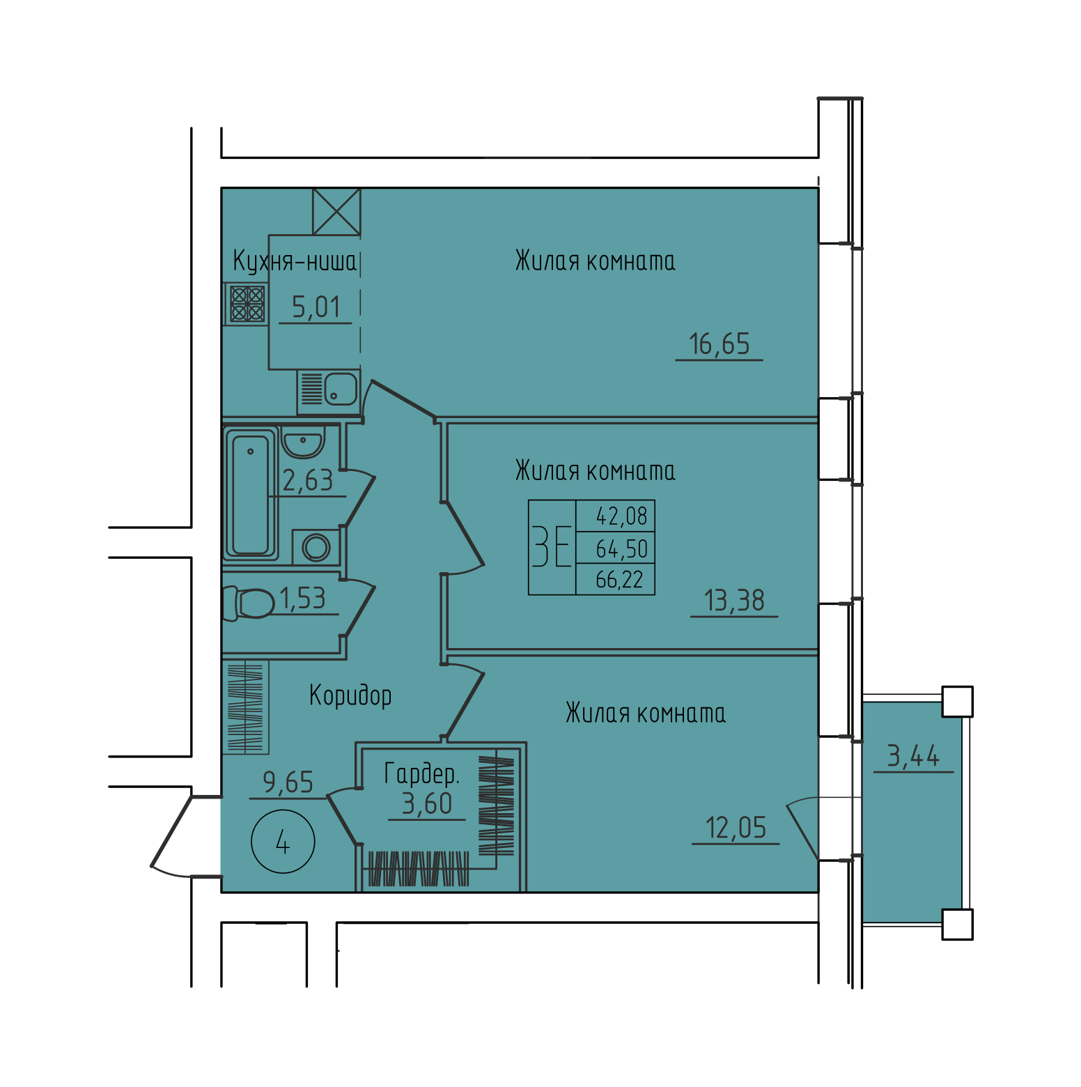
Площадь
66.22 м²
Комнат
2
Квартира
№ 4
Корпус
1
Этаж
1
Срок сдачи
2026