
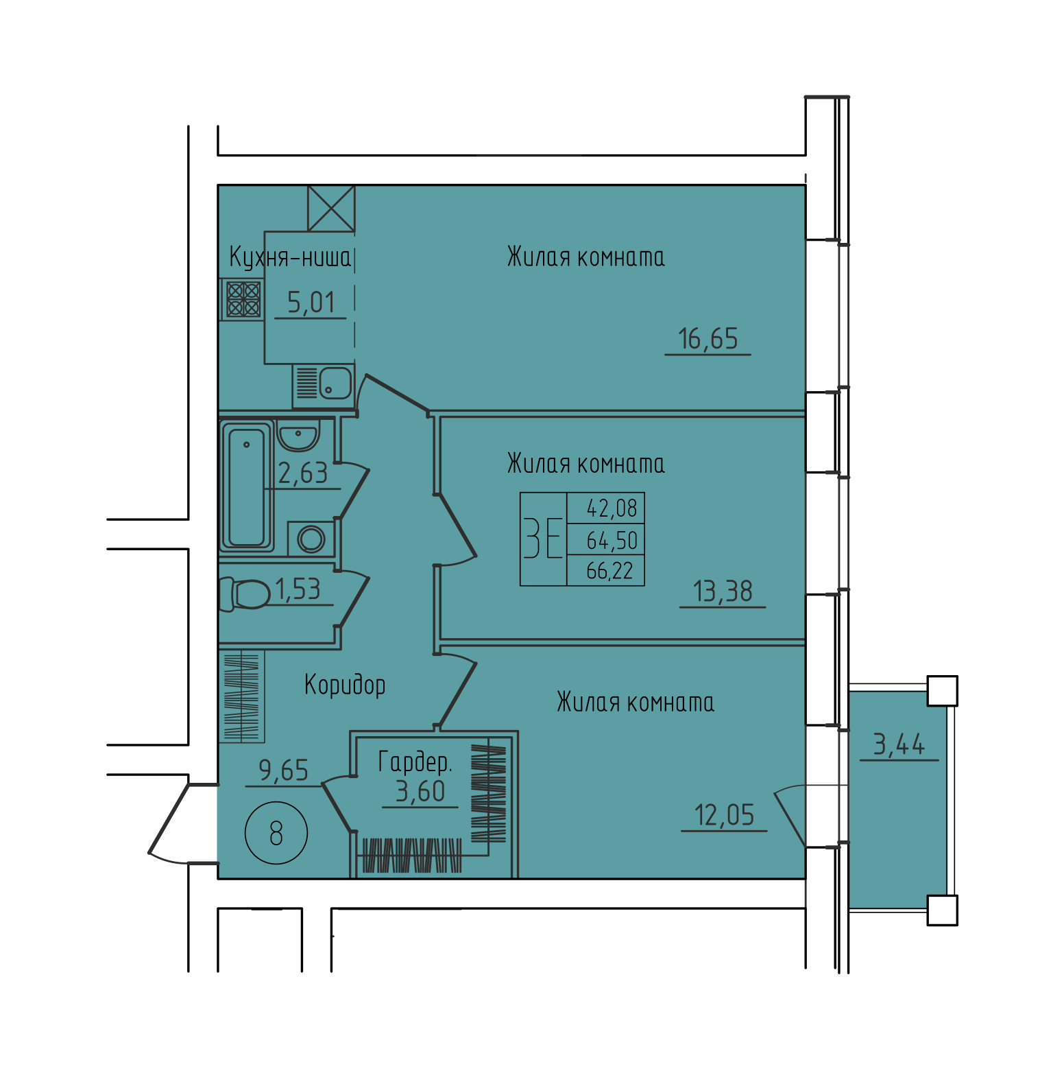
Забронирована
7 416 640 ₽
Площадь
66.22 м²
Комнат
2
Квартира
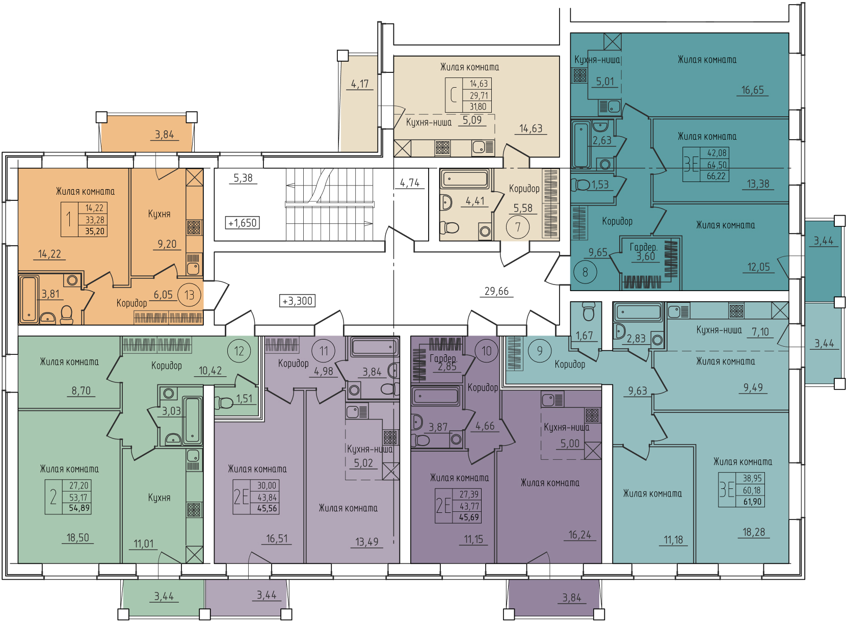
№ 8
Корпус
1
Этаж
2
Срок сдачи
2026