
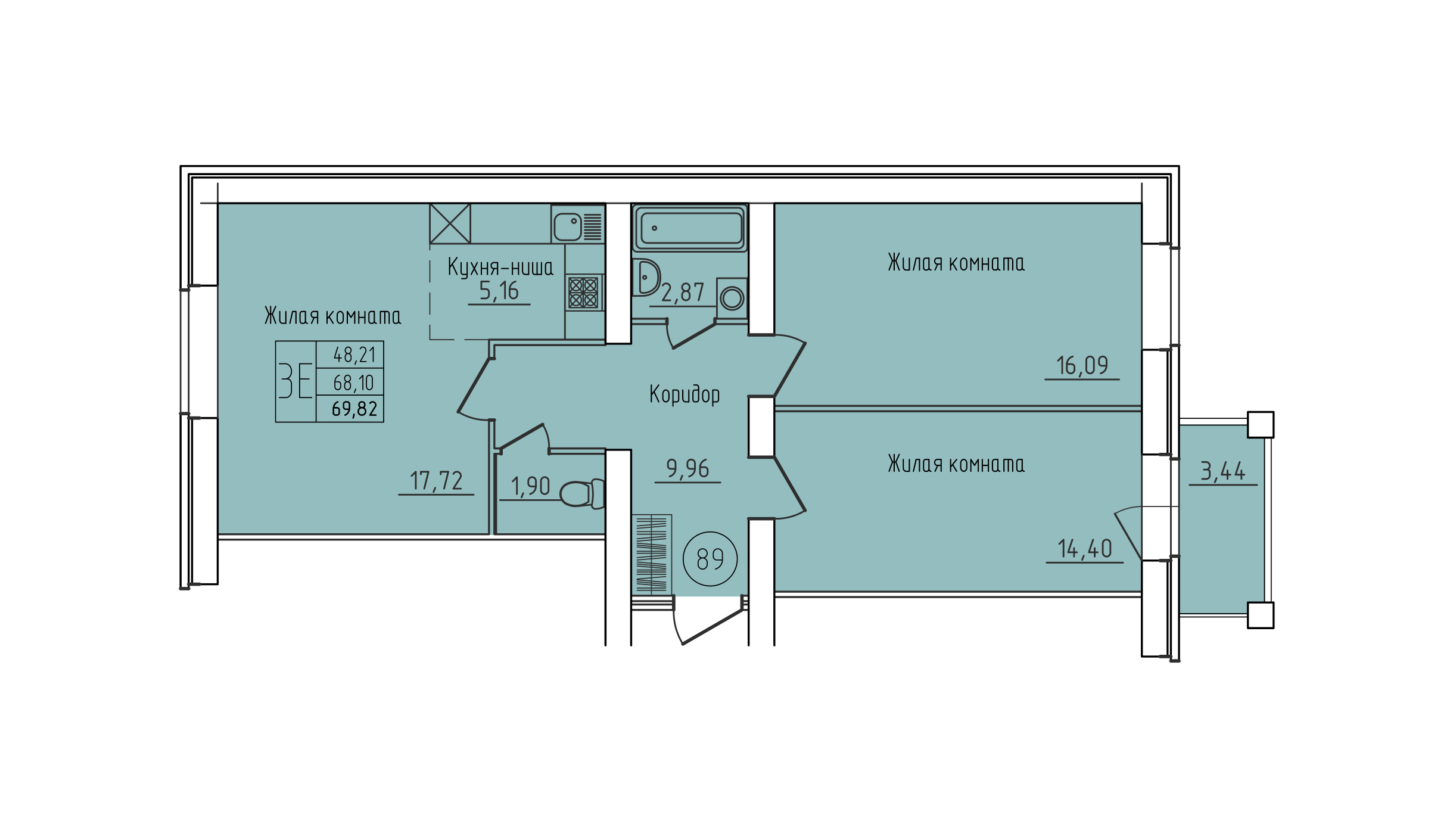
Свободна
8 779 764 ₽
Площадь
69.82 м²
Комнат
2
Квартира
№ 89
Корпус
4
Этаж
4
Срок сдачи
2026