
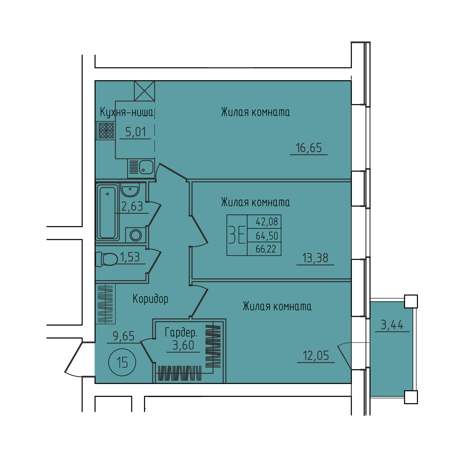
Свободна
8 322 564 ₽
Площадь
66.22 м²
Комнат
2
Квартира
№ 15
Корпус
1
Этаж
3
Срок сдачи
2026