
Свободна
8 263 620 ₽
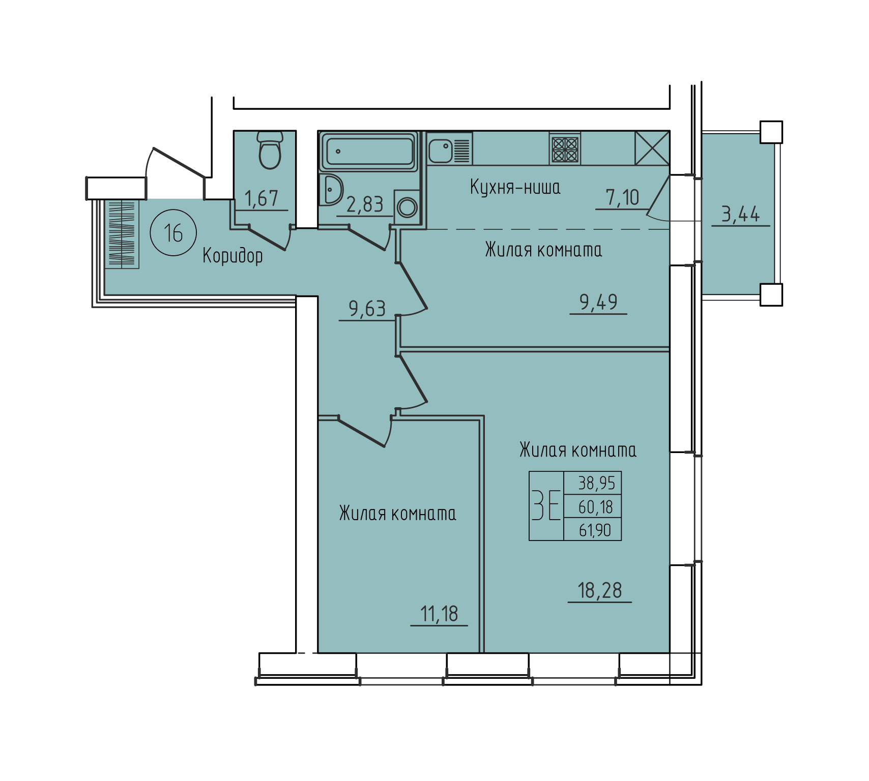
Площадь
61.90 м²
Комнат
2
Квартира
№ 16
Корпус
1
Этаж
3
Срок сдачи
2026