
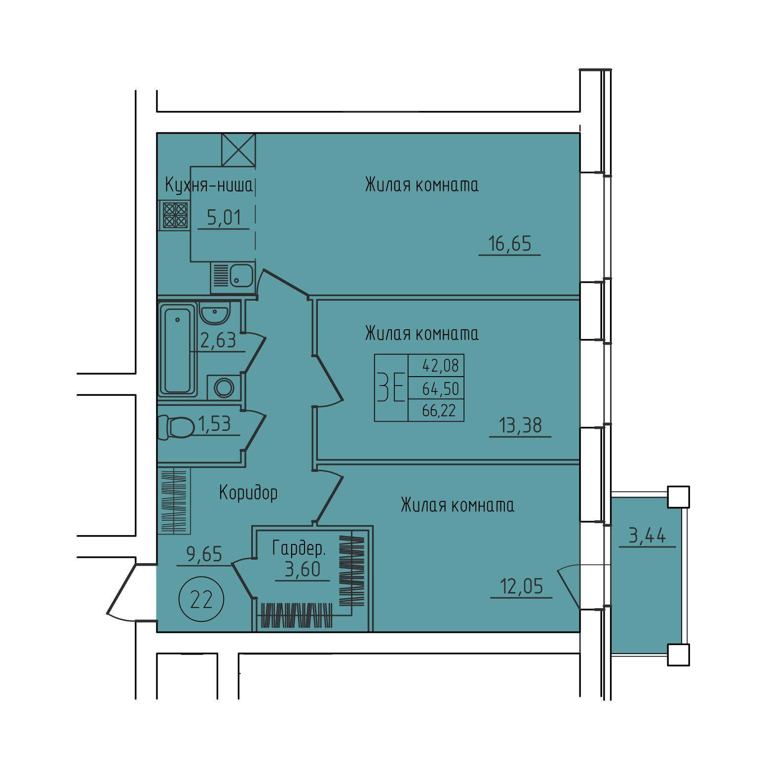
Свободна
8 322 564 ₽
Площадь
66.22 м²
Комнат
2
Квартира
№ 22
Корпус
1
Этаж
4
Срок сдачи
2026