
Свободна
7 773 924 ₽
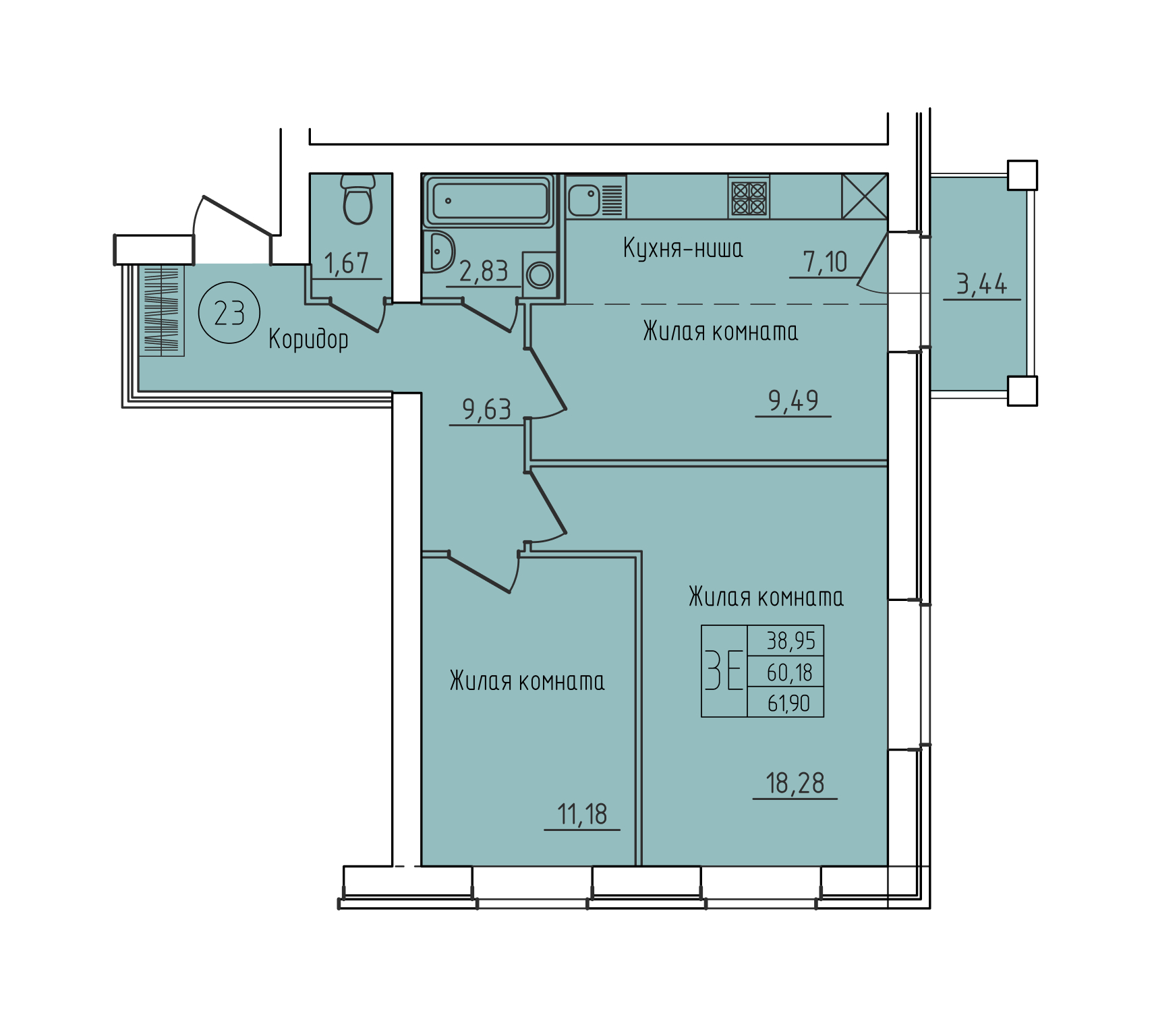
Площадь
61.90 м²
Комнат
2
Квартира
№ 23
Корпус
1
Этаж
4
Срок сдачи
2026